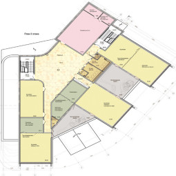
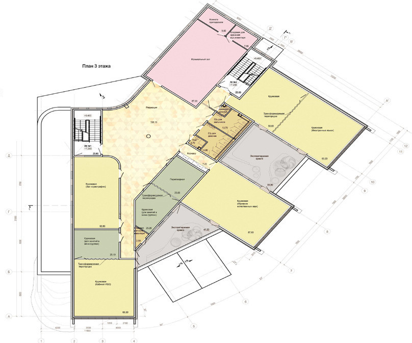
ЖК Сказка - Детский центр
Местоположение: с. Павловская Слобода, Московская область
Детский центр. Общая площадь 3 626 кв. м.
Входит в состав жилого комплекса «Сказка»
Заказчик: ООО «МАГИ», 2017 г.
Выполненные работы:
• Архитектурная концепция. Совместно c Urban Scale