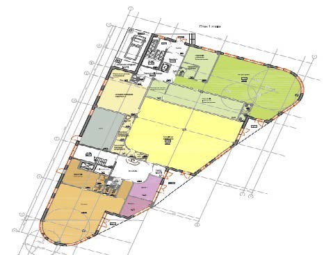
ЖК Сказка - Многофункциональный центр
Местоположение: с. Павловская Слобода, Московская область
Многофункциональный центр. Общая площадь 3 541 кв. м.
Входит в состав ЖК «Сказка»
Заказчик: ООО «Машторг», 2017 г.
Выполненные работы:
• Архитектурная концепция. Совместно с Urban Scale